Erweiterung des Gebäudes durch Hinzufügen eines Moduls
2022
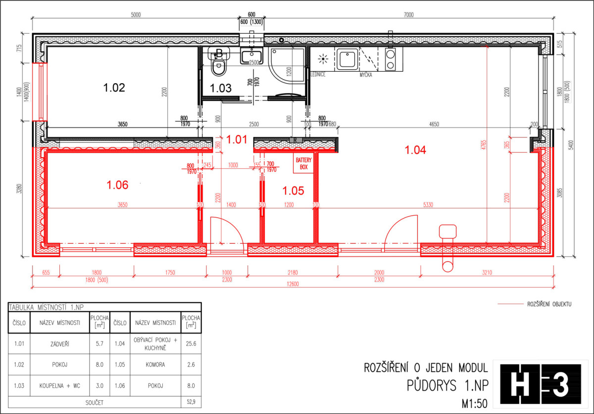
Der Vorteil der Modulbauweise ist die relativ einfache und schnelle Erweiterbarkeit. Aus dem 1blokki-Haus (realisiert im Jahr 2021) haben wir ein Modul hinzugefügt, um ein 2blokki-Haus mit einer Innenaufteilung von 3 Schlafzimmern zu schaffen. Die beigefügten Zeichnungen zeigen den ursprünglichen Zustand in schwarz, der rote Teil ist die Erweiterung. Wir haben versucht, beim Bau so sparsam und effizient wie möglich zu sein. Wir haben die Fenster und die Eingangstür aus dem ursprünglichen 1blokki entfernt und sie in den Anbau eingebaut. Außerdem haben wir das gesamte Lärchenholz von dem Teil der Fassade verwendet, der bei der Verbindung der Module entfernt werden musste.
blokki
Arbeitszeiten
Montag - Freitag
8:00 - 17:00